Institut Henri Poincaré - Musée des mathématiques
|
|
En un peu moins d'un siècle le bâtiment Perrin a subi trois campagnes majeures d'interventions et de modifications. L'édifice originel s'est vu surmonté d'étages de bureaux et d'un laboratoire au volume surprenant. Mais alors que les modifications sur les bâtiments universitaires sont courants, les adjonctions et les surélévations banales, les interventions sur le bâtiment Perrin revêtent ici le caractère d'expériences et de collection d'objets architecturaux tant la silhouette de son architecture est rendue insolite. Les bâtiments universitaires alentours sont souvent de grandes qualités alliant une esthétique austère et une parfaite maîtrise de la construction en brique. Le bâtiment Borel, siège de l'IHP, ne déroge pas à cette règle et offre des façades harmonieuses au calepinage soigné. A la simplicité et l'unicité de « Borel », s'oppose l'excentricité de « Perrin » surtout présente dans ses parties hautes. Ici la stratification des étages et des terrasses est doublée d'émergences verticales, d'un début de collections d'objets architecturaux : la tour de l'observatoire entre en compétition avec la tour du laboratoire. Ces objets sans aucun liens de parenté coexistent à quelques mètres l'un de l'autre et semblent s'ignorer tout en essayant de s'imposer l'un à l'autre. L'observatoire, comme la tour laboratoire sont autant d'émergences, autant d'expériences architecturales qui contribuent au caractère unique de ce bâtiment, en font une curiosité urbaine. Il est donc tout aussi intéressant de souligner cette histoire insolite, cette juxtaposition d'objets, que de respecter l'esprit de l'ouvrage initial et notamment sa galerie et son portique aujourd'hui malheureusement comblés.. |
![]() |
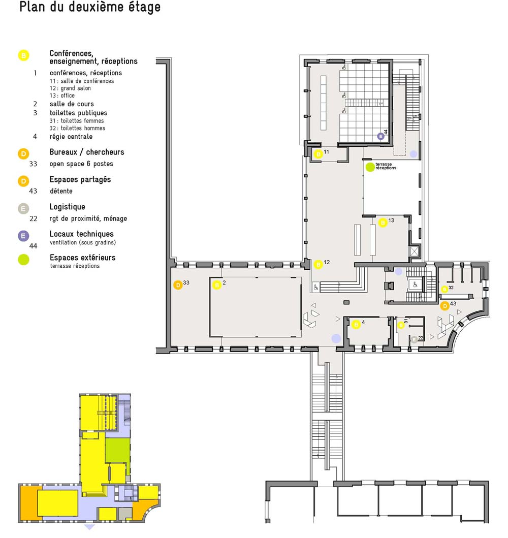
Doubler la collection des objets sur le toit Le « skyline » de l'édifice est d'une originalité surprenante et, entre les tours déjà présentes, il y a la place d'inscrire, de rajouter des « tours » contemporaines qui contribuent à cette découpe originale de l'édifice sur le ciel. Ces nouvelles émergences correspondent aux espaces des chercheurs situés en dessous. Elles permettent d'aménager des espaces de grande qualité aux volumes généreux. L'éclairage zénithal y est privilégié, offrant une lumière naturelle propice à la réflexion. |
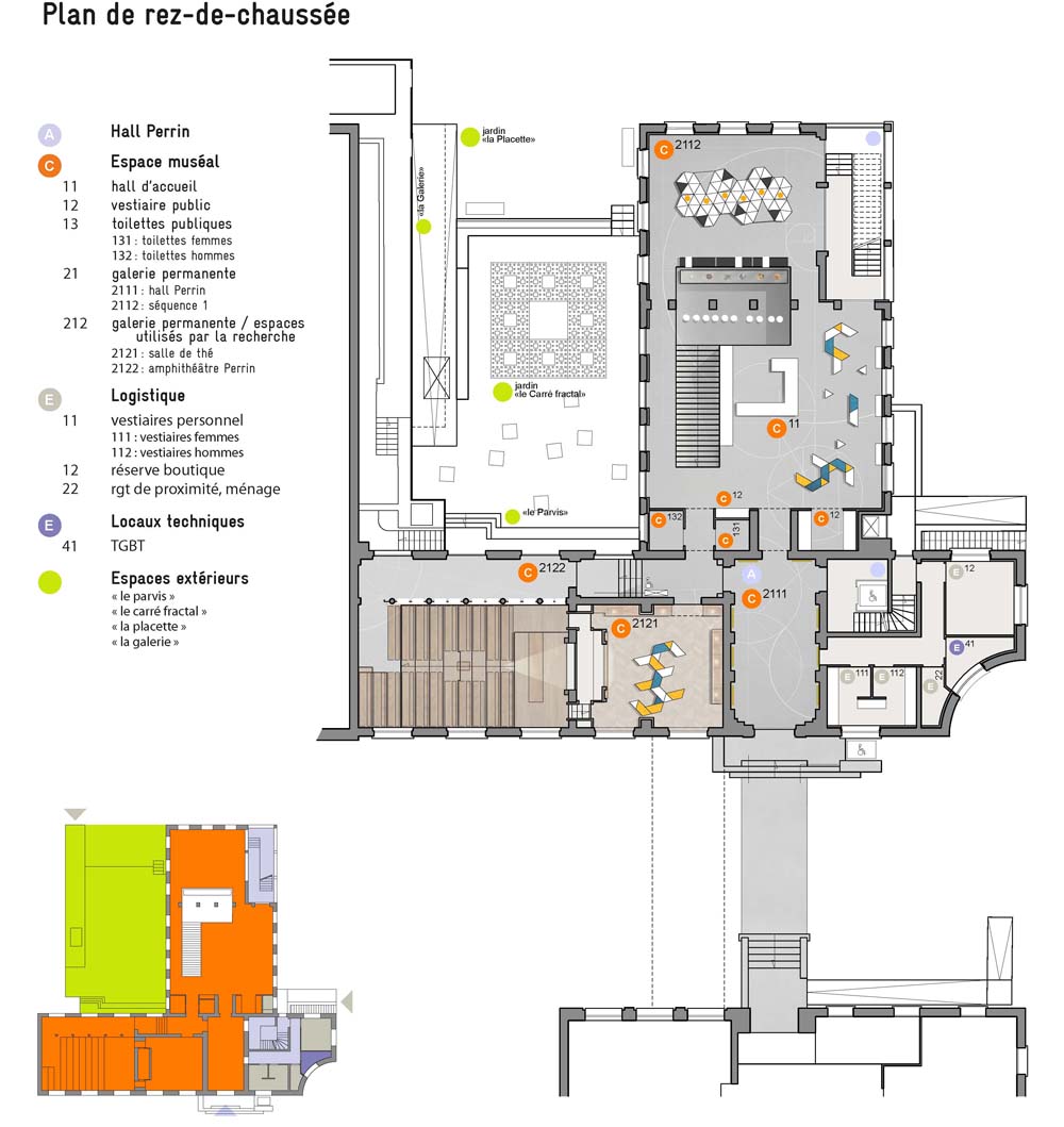
Retrouver l'esprit des façades originales Si la façade ouest a peu évolué, hormis la surélévation du dernier niveau, il n'en est pas de même côté sud où galerie et portique ont disparu, ont été comblés pour gagner de la surface. Il est donc intéressant de retrouver ce dispositif d'origine, de dégager les grandes baies et d'offrir pour ces espaces de nouvelles fonctions : c'est l'emplacement idéal pour le second escalier situé à l'extrémité de l'aile est. De même, côté cour, les appendices et autres constructions adventices sont supprimées afin de redonner à l'édifice une lecture claire de toutes ses façades. |
![]() |
![]() |
![]() |
![]() |
![]() |
Refermer l'espace des terrasses, calmer et unifier Le cadrage proposé par le portique délimite les espaces extérieurs des terrasses superposées qui n'avaient pas été « pensées » jusqu'à présent. Elles deviennent de véritables espaces en relation privilégiée avec le ciel. A la succession des « tours » fait écho la succession des terrasses qui s'enchaînent comme autant de surfaces suspendues. Toutefois la qualité de ces espaces extérieurs est à améliorer. Les terrasses sont définies actuellement par défaut et sont perçues comme le reste, l'espace restant entre les tours, souffrant d'une trop grande proximité avec celles-ci et d'autre part, souffrant d'un manque de définition et de délimitation de ces espaces vers le voisinage. Cadrer ces espaces s'impose donc à la réflexion, afin de définir un enclos, un périmètre clair au bâtiment, une limite. Le jeu de portique ainsi créé, se déroule sur les différentes façades donnant des lignes de portées sur lesquelles les nouveaux panneaux de façade viennent s'ordonner, se composer. Au portique d'origine de la façade sud fait écho le portique contemporain qui lui est superposé. Les terrasses deviennent des intérieurs et acquièrent par cette délimitation une reconnaissance au sein de l'institut, d' espaces extérieurs de qualité. |
![]() |
![]() ![]() |
![]() |
![]() |
Projet : Extension de l'institut Henri Poincaré et création d'un musée des mathématiques Lieu : Paris, Montagne Sainte-Geneviève Maîtrise d’ouvrage : APAURIF
|
Maîtrise d’œuvre : Daniel Cléris et Jean-Michel Daubourg architectes mandataires Klapish et Claisse scénographes Fabien Hahusseau graphiste Gerald Karlikow concepteur lumière ECB : BET structure Choulet : BET fluides, électricité, HQE, SSI General Acoustics : BET acoustique Forgue : économiste Deltexplan : pilote OPC Antea : dépollution. |
Surfaces : 1915 m2 SU Coût : 8,891 M€TTC Livraison : concours 2017 |